- 82000€
Aix centre ville – À vendre Cession de droit au bail Sal
Description
À vendre Cession de droit au bail Salon de coiffure équipé
Coeur historique d’Aix-en-Provence
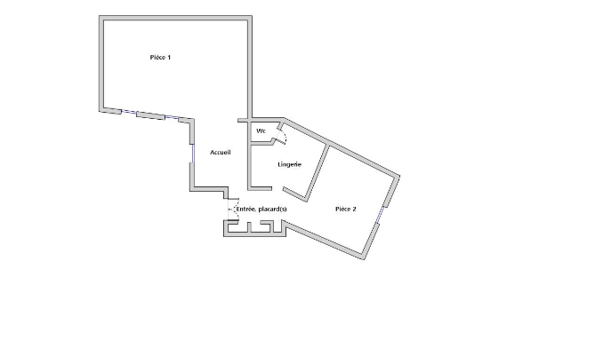
Situé en plein centre-ville historique d’Aix-en-Provence, ce local commercial à usage de salon de coiffure est installé dans un appartement à l’étage (avec ascenseur), offrant un cadre atypique et plein de charme.
Il s’agit d’une cession de droit au bail, permettant une reprise immédiate de l’activité de coiffure, dans un local entièrement aménagé et en excellent état. (loyer 1100EUR).
D’une surface d’environ 75 m2, le local a fait l’objet de travaux récents de qualité :
Fenêtres PVC neuves
Climatisation récente
Aménagement intérieur fonctionnel et soigné
La cession comprend l’ensemble du mobilier et du matériel professionnel, prêts à l’emploi :
Fauteuils de coiffure
Bacs de lavage
Espace caisse aménagé
Mobilier et équipements nécessaires à l’exploitation
Emplacement recherché en plein coeur d’Aix-en-Provence, idéal pour un professionnel souhaitant s’installer rapidement dans un salon clé en main, sans travaux à prévoir.
DPE D (Estimation des coûts annuels : entre 1 300 EUR et 1 780 EUR par an. Prix moyens des énergies indexés sur les années 2024 – 2025)
Mandat 113340 VG / Honoraires charges vendeur. VG EI enregistré sous no 877 608 083 – RSAC Salon de Provence.
Pour tout renseignement : Violaine Génot 06 76 96 21 72
Les informations sur les risques auxquels ce bien est exposé sont disponibles sur le site Géorisques : www.georisque.gouv. Retrouvez l’ensemble de nos biens sur notre site : www.korineolivier.com
Documents
Détails du bien
Diagnostic Performance Energétique
-
Classe énergie: D
-
Consommation en kWh/m²/an: 209
-
Performance énergie renouvelable: 5
-
Performance énergétique de l'immeuble: B
- A+
- A
- B
- C
- 209 | Classe énergie DD
- E
- F
- G
- H
Les plus
À découvrir avec Korine Olivier...
VENTABREN – T3 meublé et moderne avec terrasse
- 1500€mois
- Lits: 2
- Baignoire: 1
- 61 m²
- 2 | Appartement
MAISON SPACIEUSE T6 de 160m2. avec grand garage !
- 435000€
- Lits: 4
- Garage: 1
- 160 m²
- 1 | Maison
AIX EN PROVENCE : CENTRE HISTORIQUE
- 239000€
- Lit: 1
- 45 m²
- 2 | Appartement
GREOUX LES BAINS : STUDIO 30 m2 avec BALCON
- 99900€
- 30 m²
- 2 | Appartement









